巻頭特集・企画
2025年11月14日更新
【特集】沖縄の鉄筋コンクリート造② シンプルでローコスト|株式会社レクトホーム
丈夫で表現方法に富み、職人の技と知恵が息づく沖縄の鉄筋コンクリート(RC)造。近年は、デザインはもとより、建築コストや環境負荷にも配慮した住まいやまちづくりの提案が広がっている。今号ではそんな創意工夫あふれる5社をクローズアップ。ローコストやZEH、建て売り、自由設計、プレキャストまで選択肢は多彩だ。
巻頭特集・企画
タグから記事を探す


木や白壁を基調にしナチュラルな雰囲気。左側の花ブロック壁は視線を遮りつつ光や風は通す
アレンジ自在の「四角い箱」
(株)レクトホームといえば、鉄筋コンクリート(RC)造の“四角い箱”に、花ブロックでアクセントを付けるスタイルでおなじみ=下写真。

花ブロックは数十種類から選べる。「取り入れる場所や形で印象はガラリと変わる」と話す
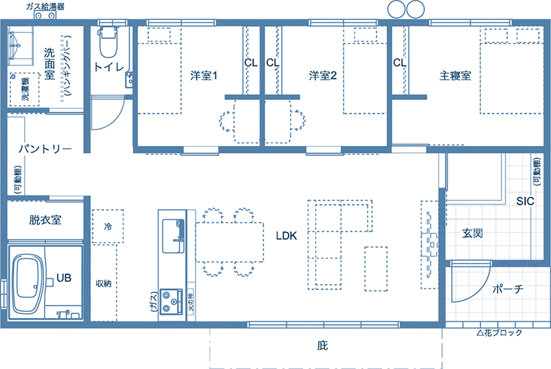
「当社は自由設計なのですが、手掛けた物件を見て『ウチも花ブロックを使いたい』と要望してくださる方が多いです。建物の形はシンプルにしてローコスト化を図り、室内でお客さまの要望や好みを反映する。それが当社の特徴です」と営業部の稲福伸之部長は話す。花ブロックは数十種類から選べ、プライバシーを守りつつ通風・採光の確保にも役立っている。
打ち合わせは「マンツーマン制」。「最初の打ち合わせを担当した営業スタッフがアフターケアまで対応するので、お客さまとの信頼関係が築きやすい。要望・好みを聞き取りながらイメージを固めていきます」。施主の「こんな空間にしたい」という要望を、インスタや新聞・雑誌などの写真で共有しながら打ち合わせを進め、建築士につなぐ。「限られた予算内で納得のいく家を建てるには、やりたいことを明確にして優先順位を付けることが大切です。お客さまの話を丁寧に聞いて順位付けをし、予算とすり合わせながら一緒に取捨選択していきます」と力を込める。

関連記事:【特集】沖縄の鉄筋コンクリート造を扱う5社 見た目・価格・機能性 広がる選択肢
本島中部の依頼増える
来年1月沖縄市に拠点
「シンプルでローコスト」という考え方が現代ニーズにマッチし、設立から6年で約60棟を建てた。「コスト削減に重要なのは『余分な空間を造らない』こと。そのため、当社の物件は廊下が少ないのが特徴です。その分リビングを広げ、LDKを通って各居室に行く間取りにしています」と稲福さん。そんな“家族の顔が見える造り”は、ファミリー層を中心に支持されている。また「家事動線も極力コンパクトにまとめ、日々の暮らしやすさとの両立も心掛けています」と話す。

同社は施工まで一貫して手掛けるため、「設計の意図が現場にスムーズに伝わるほか、常に安定した高クオリティーの住宅を提供できます」と稲福さんは胸を張る。
現在、宜野湾オフィス(伊佐)のほか、那覇オフィス(山下町)、名護オフィス(宇茂佐)を構える。「最近はうるま市や沖縄市の物件も増えていることから来年1月には、沖縄市越来にも事務所を開設します。中部で家づくりを検討している方も、ぜひ相談に来てください」と呼び掛けた。
〈問い合わせ〉
株式会社 レクトホーム
住所=宜野湾市伊佐2−18−9(宜野湾オフィス)
電話=098・975・5592
↓画像をクリックすると、レクトホームのホームページに移動します

毎週金曜日発行「週刊タイムス住宅新聞」
第2080号・2025年11月14日紙面から掲載
巻頭特集・企画
タグから記事を探す














